323 Belle Mead
Belle Mead, New Jersey
323 Belle Mead
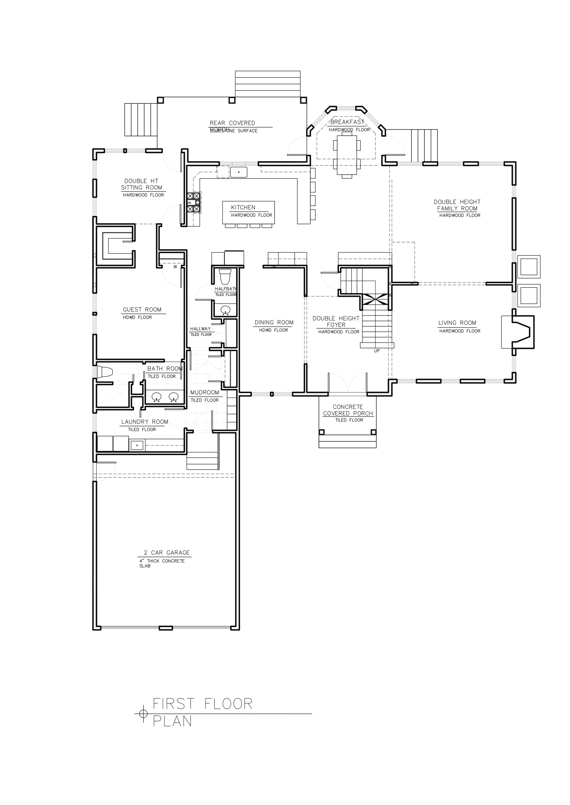
Set on a 1.87-acre lot, 323 Belle Mead is a double-storeyed home with wooden floors throughout, a covered back porch, decks, a basement, and a 2-car garage. With ample space for a garden and backyard, it blends luxury with outdoor potential.
- 4,206 sq ft
- Beds: 5
- Baths: 4.5
Floor Plan
Schedule a Visit
Let's discuss your dream home. Explore how our design expertise and luxury features can bring your vision to life.
Contact Us


